04 de Febrero 2022

Horizon

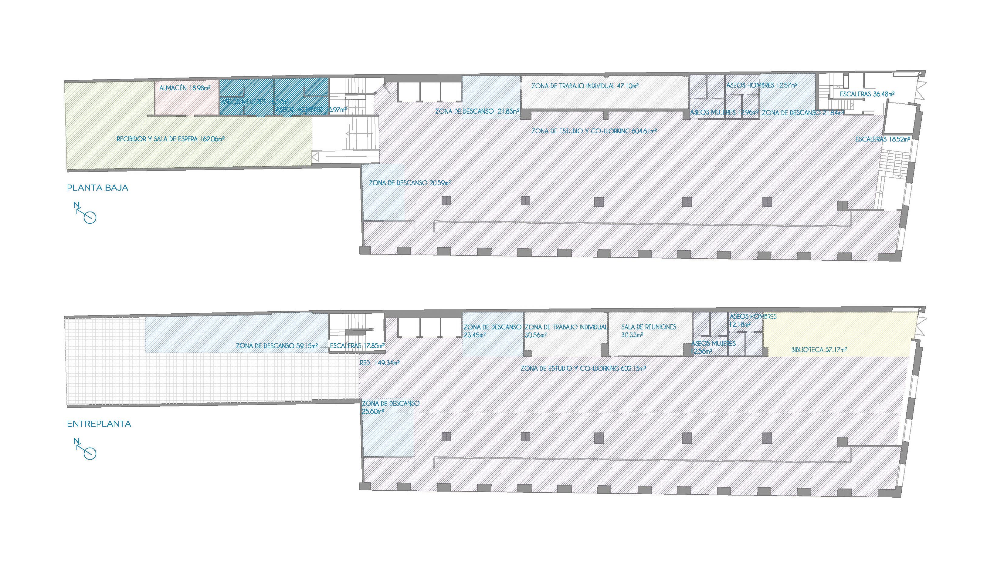
Reconversión de un hotel ubicado en Barcelona dedicado a los más jóvenes, con zonas de descanso, co-working, restaurante, etc. Un espacio seguro y lleno de cultura.

 

Situado cerca de la playa, la construcción está influenciada por otras de su categoría que se caracterizan por ofrecer un espacio placentero y relajante visualmente, pero que a su vez estimula todos los sentidos con temáticas específicas. Para la validación del proyecto se presentó todos los planos de las plantas necesarios (planimetría), el mobiliario y materiales usados, las texturas para cada espacio y las instalaciones.

 

Horizon forma parte de un proyecto de diseño de interiores en el que refleja muchas de los conocimientos que trabajan los alumnos en su día a día. Creatividad, diseño y planos.

Image
Cesine Diseño y Creación - Proyectos de Alumnos - Horizon / Cristina Alonso (4)
Image
Cesine Diseño & Creación - Proyectos de Alumnos - Horizon
Image
Cesine Diseño y Creación - Proyectos de Alumnos - Horizon / Cristina Alonso (6)
Image
Cesine Diseño y Creación - Proyectos de Alumnos - Horizon / Cristina Alonso (2)
Image
Cesine Diseño y Creación - Proyectos de Alumnos - Horizon / Cristina Alonso (3)
Image
Cesine Diseño y Creación - Proyectos de Alumnos - Horizon / Cristina Alonso (5)